
本案设计主要以VI设计色彩为主打色,VI色彩主要为黄色系,具体色号R250 G192 B19,为了让整体色彩趋近VI色系,但又不能让空间看起来很燥热,因此在设计和选材方面尽可能考虑通透性好,亲和力强的材质,例如亚克力,木质,棉麻,水磨石等。


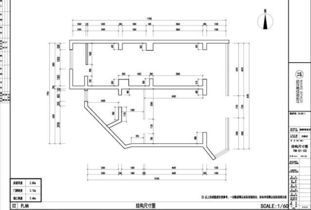
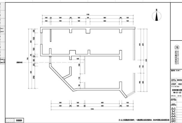
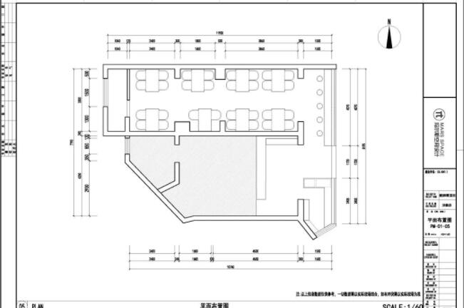
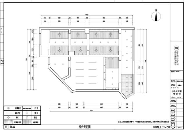
考虑到本案空间结构属于传统老房一层住房改营业用房,采光较差,并且房屋结构不能进行随意拆改,所以限制因素较多。设计师首先主要利用空间进行功能区划分,将以前杂乱无章的功能区进行规划和整合,以提升空间品质和用户体验为基础进行功能布局。并且尽可能的考虑甲方要求的餐椅数量和用餐人数,下图为本案功能布置彩色平面图,由于厨房区域设备较多,故必须保留足够的空间。其余空间分别设置为取餐区、收银区、外卖区、吧台区、堂食散座区、储藏室。本案主要对以上区域进行设计和布置。

考虑到采光和VI色彩,本案选用浅色调为主。主要材质采用木质,金属,棉麻,水磨石、亚克力等。水磨石是近来网红设计的主要材料之一,可以用在空间中的地面和台面上,提升空间品质和网红气质,更符合年轻人的审美。亚克力有轻质透明的特点,在狭窄拥挤的空间可以减缓压抑,将亚克力用在数量较多的家具餐椅上,会让空间更具有轻盈感和透气性。木质和棉麻则是展示空间的环保和天然,同时也是隐喻商家产品的绿色生态无污染。木质主要用在墙裙,造型墙部位,棉麻线条可以作为点缀和装饰,寓意米粉元素。

△空间效果图-取餐区

△空间效果图-堂食区灯光设计方面主要采用3800-4500K的暖白光源,第一暖白光源符合VI色系中的黄色系,第二暖白光可以让空间的感受更加温馨,适宜用餐。并且在晚上,暖白光更有人性趋向。为节约改造造价,店铺门窗都不进行拆除,外卖区和吧台区更需要设计出展示效果。在吧台区上方可设置循环播放广告的电视,外卖区设置鲜明的元素和本店的主打词汇,更能吸引顾客前来用餐。

△空间效果图-收银区

△空间效果图-门头CAD施工图











项目设计方案







项目设计总结项目采用明快的色调与vi色彩进行呼应。在工装设计中,风格往往不被定义,更多在于场景的格调与氛围。不仅需要体现品牌的特点,还需要将产品形象化,让食客在视觉上就能直观了解店铺性质。本案的原木色与棉麻线既表达了生态绿色的堂食环境,又说明了本店主要经营的产品。版权声明 | 文章配图仅供学习参考,引用图片版权归属原作所有